Torre Galfa, an icon of modern Milanese architecture and a pioneer of the International Style, is being revitalized through an ambitious redevelopment project. The intervention respects the original architecture while transforming the tower into a cutting-edge building serving both hotel and high-end residential functions in the heart of Milan.
Architectural Restoration
The original and admired architecture of Torre Galfa, designed in 1956 by Melchiorre Bega, is preserved and enhanced with modern materials and technologies that meet today’s energy efficiency, durability, and sustainability standards. Located between via Galvani and via Fara, the tower was originally built for the offices of the Sarom oil company and became a symbol of post-war economic growth. Its innovative “glass tower” design impressed architects like Gio Ponti and Richard Neutra for its lightness and elegance.
The tower’s structure consists of six reinforced concrete “wings” with curtain-wall facades of continuous glass and duraluminium, creating open, airy interiors. The current redevelopment preserves the original layout while upgrading building systems, security, and functionality.
Renovation by BG&K Associati (Maurice Kanah, architect) enhances the continuous facades, geometric details, and modernizes the base of the building, creating a public plaza with water features and marble seating, integrating a new crystal cube housing access to the underground floors.
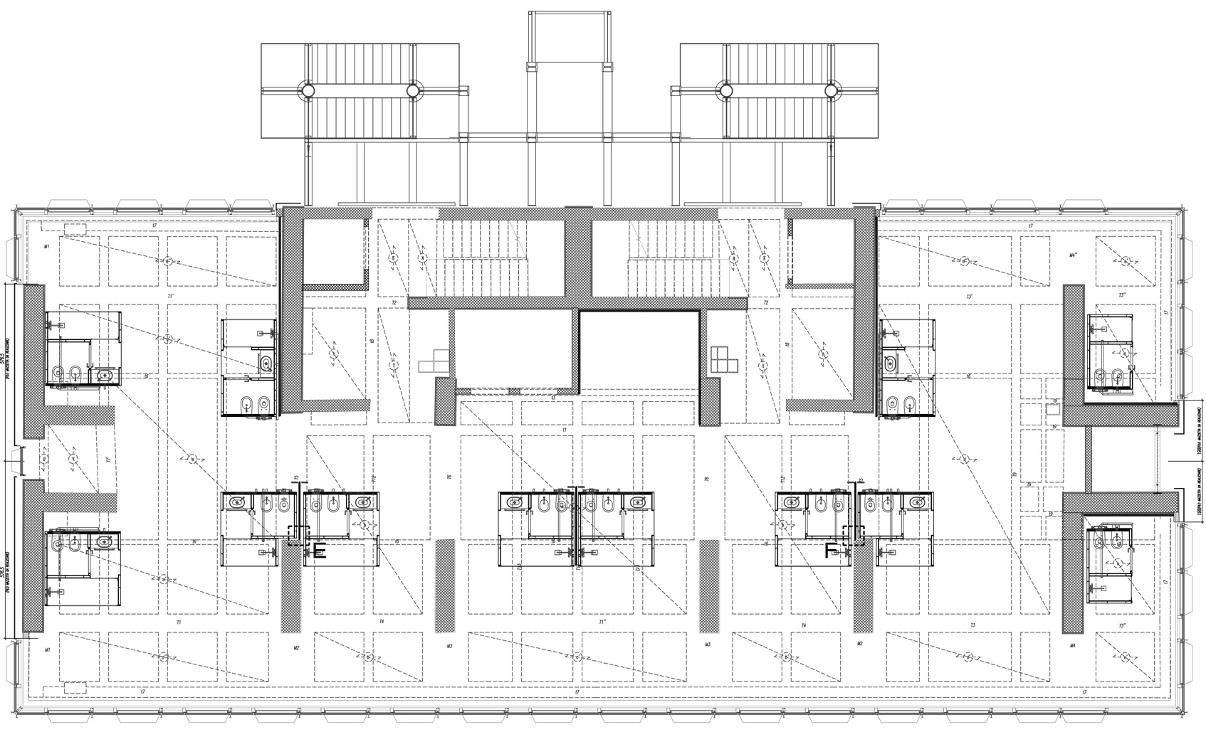
The original layout with the addition of the new external emergency staircases
Hotel and Residential Functions
The building will be Class A energy-rated and equipped with advanced SMART and GREEN technologies. The first 13 floors will house a 145-room hotel, including a fitness center, ground-floor restaurant, and conference facilities in the basement. Floors 14 and above will contain luxury residences, with a rooftop offering panoramic views of Milan.
StercheleGroup contributes with its off-site prefabricated Bathroom Pods, optimizing quality and reliability while minimizing construction issues. For the hotel, 144 lightweight Bathroom Pods in 12 different models have been designed to meet strict technical requirements, including glass partitions, a maximum weight of 250 kg/m², and a floor thickness of just 6 cm.
The integration of prefabricated Bathroom Pods preserves the architectural layout, materials, and systems while industrializing construction and ensuring top-quality results.
Facades
The new facades respect the original design while meeting today’s energy efficiency requirements, using a triple-glass curtain-wall system. A steel perimeter beam supports the increased load and ties into the cantilevered concrete beams.
The first phase, completed in May, involved dismantling 7,000 sqm of the old steel and glass facade from top to bottom. Installation of Bathroom Pods and new facades will follow using advanced off-site techniques.
Facade dismantling
Systems and Technology
Torre Galfa integrates geothermal energy, photovoltaic panels, and SMART Building systems.
-
Geothermal wells, half the height of the building, supply energy to high-efficiency heat pumps (PDCs) connected via a water loop to all floors.
-
Each indoor unit can independently provide heating or cooling, recovering heat as needed.
-
Bathrooms feature ceiling-mounted radiant electric panels for higher comfort.
-
The BMS system is web-based, allowing full remote management of climate control without additional software.
-
All distribution runs through dedicated shafts, with bathroom systems converging into external technical shafts for the prefabricated Bathroom Pods.

